革命と住宅(2) ドム・コムーナ──社会主義的住まいの実験(後篇)|本田晃子

2021年2月19日刊行『ゲンロンβ58』
後篇
4.ドム・コムーナから社会主義都市へ
深刻な住宅難にあえぐ当時のソ連の大都市では、住まいを確保することは多くの人びとにとって文字通り死活問題だった。けれどもその一方で、「新しいブィト」の導入への関心は低かった。そのような現状をふまえたうえで、人びとを社会主義的生活様式へと導くための「移行型」ドム・コムーナの設計に取り組んだのが、構成主義期建築運動のリーダーの1人であった、モイセイ・ギンズブルグだった。ギンズブルグはロシア共和国の建設委員会ストロイコム Стройком に所属し、同僚の構成主義建築家らともに、旧来の家族単位のフラット型から、寮やホテルのような寝室のみからなるワンルーム型まで、さまざまなタイプの集合住宅のモデルを開発した。
例えばギンズブルグ・チームによって生み出されたA型モデルは、既存の集合住宅の面積を縮小し合理化したもので、4人向け(54平方メートル程度)のA-2型と、5−7人向け(70平方メートル程度)のA-3型【図1】の2種類が制作された[★1]。いずれのタイプでも各戸に独立した台所と浴室が設けられており、家族単位の生活様式を前提としていた。対して、集団化が最もラディカルに進められたのはE型モデルだった。E型モデルには、机とベッドのみからなる2−4人向けのメゾネット形式の6部屋(定員22名)がひとつのユニットを構成するE-123型と、全室が9−10平方メートルのワンルームのタイプE-1型【図2】があった。両タイプとも共用廊下が通路としてだけでなく食堂や共同キッチン、レクリエーション・ルームとして機能することになっていた【図3】[★2]。



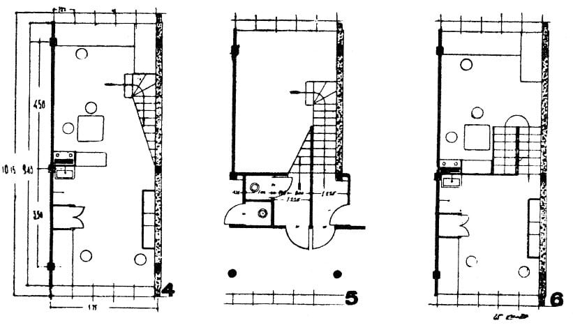
デザイン上の斬新さとその後の集合住宅史の展開から興味深いのは、F型モデルである。F型は家族単位のメゾネット形式で、27−31平方メートルという限られた面積ながら、リビング兼ダイニング部分に広い水平連続窓を設けて天井高を最大3.5メートルまで上げ、閉塞感を感じさせないつくりになっていた。一方浴室や寝室、共用廊下などのコンパクトでもよい部分の天井高は2.15−2.25メートル程度に抑制された。住居のみからなる天井の高いフロアと、共用廊下+住居(玄関)からなる天井の低いフロアを交互に積み上げることで【図4】、A型よりも廊下に割かれる面積を縮小し、しかも住居のみのフロアでは二面採光と効率的な通風が可能になるという利点があった[★3]。建築家・建築史家の八束はじめは、このF型のデザインにル・コルビュジエの集合住宅構想《イムーブル・ヴィラ》(1922年)からの影響を指摘するとともに、このギンズブルグらのF型や後述する《ドム・ナルコムフィン》が戦後のル・コルビュジエによる集合住宅の傑作《ユニテ・ダビタシオン》(1945-1952年)に影響を与えたのではないかと推測している[★4]。

【図4】F-1型の住居のみのフロア(左・右)と共用廊下+玄関からなるフロア(中央)
これらストロイコムのギンズブルグ・チームの集合住宅モデルは、モスクワ、サラトフ、スヴェルドロフスクの6か所に実際に建設された。その中でも最も高い完成度を誇るのが、モスクワのノヴィンスキー環状通りに建設された《ドム・ナルコムフィン Дом Наркомфина》(1928-1930年)【図5】である[★5]。
この集合住宅は、住民の8割がブルーカラーだった第1ザモスクワレツコエ連合のドム・コムーナとは異なり、ロシア共和国の財務人民委員部(財務省)の高級官僚を対象としていたため、各戸の設備や面積はより充実している。《ドム・ナルコムフィン》は、50戸分の住居を含む主棟と、渡り廊下でつながったサーヴィス棟からなり、ガラスのカーテンウォールをもつサーヴィス棟には住民専用の食堂や図書館などが配置された(保育園の設置も計画されていたが、実現はされなかった)。主棟の1階部分はル・コルビュジエ風のピロティで、2階−6階部分にはストロイコムで開発された複数のメゾネット形式のモデル──独立した浴室や台所、吹き抜けのリビング・ダイニングをもつ大家族向けのK型【図6】や、浴室・台所を省略した変形F型【図7】──が採用された[★6]。

これらストロイコムのギンズブルグ・チームの集合住宅モデルは、モスクワ、サラトフ、スヴェルドロフスクの6か所に実際に建設された。その中でも最も高い完成度を誇るのが、モスクワのノヴィンスキー環状通りに建設された《ドム・ナルコムフィン Дом Наркомфина》(1928-1930年)【図5】である[★5]。
この集合住宅は、住民の8割がブルーカラーだった第1ザモスクワレツコエ連合のドム・コムーナとは異なり、ロシア共和国の財務人民委員部(財務省)の高級官僚を対象としていたため、各戸の設備や面積はより充実している。《ドム・ナルコムフィン》は、50戸分の住居を含む主棟と、渡り廊下でつながったサーヴィス棟からなり、ガラスのカーテンウォールをもつサーヴィス棟には住民専用の食堂や図書館などが配置された(保育園の設置も計画されていたが、実現はされなかった)。主棟の1階部分はル・コルビュジエ風のピロティで、2階−6階部分にはストロイコムで開発された複数のメゾネット形式のモデル──独立した浴室や台所、吹き抜けのリビング・ダイニングをもつ大家族向けのK型【図6】や、浴室・台所を省略した変形F型【図7】──が採用された[★6]。



この変形F型の住戸は、玄関+トイレのフロアとリビング・ダイニング・寝室を兼ねるワンルームのフロアの2層からなり、狭い空間をさらに圧迫しないためにも、ストロイコムで研究されていた台所ユニット【図8】が導入された。これは調理台を中心に、コンロと流し台、出し入れ可能な作業台からなるシステム型キッチンで、調理中の作業動線が最小限になるようデザインされていた。台所を使用していない時には、クローゼットのようにドアを閉めてユニットを丸ごと隠すこともできた[★7]。

【図8】台所ユニットと想定された家事動線
このようないわば「穏健な」移行型ドム・コムーナに対して、より急進的なドム・コムーナを提案する建築家もいた。例えばニコライ・クジミンは、現行のドム・コムーナが家事・育児からの女性の解放や家族の解体といった目標を不十分にしか達成していないとして批判した。彼のドム・コムーナ計画では、成人は男女別に6人程度の集団で生活し(性生活の際のみ、2人部屋を使用することができる)、親子の面会は自由だが、子どもは親の生活の負担とならないよう、成人とは別の空間で集団生活を行うことになっていた[★8]。夫婦、親子を物理的に引き離すことによって、妻が夫に、子が父に隷属する従来の家父長的な家族関係を解体し、女性が夫や子どもの世話をする慣習を強制的にリセットすることが目指されたのである。
このようなドム・コムーナの実験は、間もなく都市全体の計画へと拡大されていった。
第1次5カ年計画が開始されると、重工業の集中的育成という国策の下、天然資源の豊富なウラル山脈やシベリアの僻地といった、それまでほとんど無人の荒野であった場所に新たに工業都市を建設するプロジェクトが、次々にスタートした。だが資本主義体制によって築かれた都市とは異なる(はずの)社会主義的都市のヴィジョンは、いまだ明確ではなかった。そこで多くの専門家や建築家を巻き込んで展開されたのが、社会主義都市 соцгород 論争である。この論争のなかで「都市派」と呼ばれる陣営を築いた経済学者のレオニード・サブソヴィチは、集団化が進行しつつある農村と交通・通信技術の発達によって拡散しつつある都市を融合させることによって、旧来の都市とも農村とも異なる共同体を生み出すことができると主張した[★9]。このようなサブソヴィチの理論に即して、構成主義建築運動のリーダーであるアレクサンドル・ヴェスニンとその兄のヴィクトルが作成したのが、スターリン・グラード計画【図9】である。同計画では、成人2000−3000人を収容可能な4階ないし5階建てのドム・コムーナを中心とする、人口6万人規模の自給自足の農工業都市が想定されていた。都市に住むすべての成人にはドム・コムーナ内に1部屋が与えられ、夫婦であっても基本的にはそれぞれの個室(ベッドと机、収納からなるミニマムなワンルーム)で暮らすことが求められた。親子は自由に面会できるものの、クジミンのドム・コムーナ案同様、子どもは親とは離されて年齢に応じた集団生活をすることになっていた[★10]。

このようないわば「穏健な」移行型ドム・コムーナに対して、より急進的なドム・コムーナを提案する建築家もいた。例えばニコライ・クジミンは、現行のドム・コムーナが家事・育児からの女性の解放や家族の解体といった目標を不十分にしか達成していないとして批判した。彼のドム・コムーナ計画では、成人は男女別に6人程度の集団で生活し(性生活の際のみ、2人部屋を使用することができる)、親子の面会は自由だが、子どもは親の生活の負担とならないよう、成人とは別の空間で集団生活を行うことになっていた[★8]。夫婦、親子を物理的に引き離すことによって、妻が夫に、子が父に隷属する従来の家父長的な家族関係を解体し、女性が夫や子どもの世話をする慣習を強制的にリセットすることが目指されたのである。
このようなドム・コムーナの実験は、間もなく都市全体の計画へと拡大されていった。
第1次5カ年計画が開始されると、重工業の集中的育成という国策の下、天然資源の豊富なウラル山脈やシベリアの僻地といった、それまでほとんど無人の荒野であった場所に新たに工業都市を建設するプロジェクトが、次々にスタートした。だが資本主義体制によって築かれた都市とは異なる(はずの)社会主義的都市のヴィジョンは、いまだ明確ではなかった。そこで多くの専門家や建築家を巻き込んで展開されたのが、社会主義都市 соцгород 論争である。この論争のなかで「都市派」と呼ばれる陣営を築いた経済学者のレオニード・サブソヴィチは、集団化が進行しつつある農村と交通・通信技術の発達によって拡散しつつある都市を融合させることによって、旧来の都市とも農村とも異なる共同体を生み出すことができると主張した[★9]。このようなサブソヴィチの理論に即して、構成主義建築運動のリーダーであるアレクサンドル・ヴェスニンとその兄のヴィクトルが作成したのが、スターリン・グラード計画【図9】である。同計画では、成人2000−3000人を収容可能な4階ないし5階建てのドム・コムーナを中心とする、人口6万人規模の自給自足の農工業都市が想定されていた。都市に住むすべての成人にはドム・コムーナ内に1部屋が与えられ、夫婦であっても基本的にはそれぞれの個室(ベッドと机、収納からなるミニマムなワンルーム)で暮らすことが求められた。親子は自由に面会できるものの、クジミンのドム・コムーナ案同様、子どもは親とは離されて年齢に応じた集団生活をすることになっていた[★10]。

一方、同じ構成主義建築家でもギンズブルグは全く異なるアプローチを選んだ。そのきっかけとなったのが、社会主義都市論争で「非都市派」グループの代表者を務めた、社会学者ミハイル・オヒトヴィチとの出会だった。
オヒトヴィチによれば、工業化と交通技術の発達した社会では、原料の採取から加工、販売、消費までが1か所で行われることは極めてまれである。そのような社会では、原料や商品だけでなく生産者や消費者も、常に移動し続ける流動的な状態に置かれている。それゆえ彼の考える都市計画は、単に住宅や工場、オフィスなどを設計・配置することに終始しない。そこで求められているのは、生産から消費までのトータルな流通システムを、「最大限の自由、軽量性、情報・通信の高速化の原則」によって、「建築物という形式において、ある総体として"設計"すること」[★11]なのだ。したがってこのような都市では、住宅も常に循環し続ける流通システムに最適化されている必要があった。
オヒトヴィチの理論に感銘を受けたギンズブルグは、初対面のオヒトヴィチとのわずか1時間半ほどの会談ののちに、それまでのドム・コムーナの理念を捨て、全く新しい住宅像を抱くに至った[★12]。それが具体化されたのが、ミハイル・バルシチとの共同設計による《緑の都市 Зеленый город》構想である。
彼らの考える新しい都市とは、ロシアの大地にコルホーズや各種工場などを連結する幹線道路を張り巡らし、この幹線道路に沿って帯状のテラスハウス型住宅を建設するというものだった。幹線道路が住宅建設の基軸となるために、ここでは過密や過疎が生じる余地はない。幹線道路には自家用車やバスなどの公共交通機関のための駅が等間隔に設けられ、その駅から延びる歩道に沿って公共食堂や保育施設、文化施設、スポーツ施設等が配置され、住人は最寄りの駅から住まいまで10分程度歩くうちに、生活に必要なあらゆるサーヴィスが受けられるよう計算されていた【図10】[★13]。

【図10】《緑の都市》より幹線道路(右)、各種サーヴィス施設(中央)、帯状の住宅群(左)
また各コンパートメントは12平方メートル程度のワンルームで、すべての成人に1戸が配分されることになっていた【図11】。帯状に連なる住宅はピロティによって2メートルほど地上から持ち上げられ、このピロティ部分が通路を兼ねた。居室の東西の壁面には巨大な開口部が設けられ、通風・採光を効率的に確保するだけでなく、周囲の自然を直に感じられる「屋根のあるテラス」[★14]であることが目指されていた。このようなオヒトヴィチ=ギンズブルグの住宅モデルで重視されたのが、住み替えの容易さである。オヒトヴィチは年齢や性別によって機械的に住宅を配分することに反対し、労働環境や人間関係の変化(職場の異動や婚姻、出産など)に応じて、ある住居から別の住居へと容易に住み替え可能であるべきだと考えた[★15]。このようなオヒトヴィチの主張を受けて、ギンズブルグらは住宅のデザインを標準化し、すべての家具を作りつけにすることで、労働者がトランクひとつで部屋から部屋へと自由に移り住めるような居住システムを構想したのである。それはまさしくエンゲルスによって提示された理想の労働者住宅、「家」からの最終的な解放のための家──あるいは反・家──であったというべきだろう。

【図11】《緑の都市》より労働者住宅のデザイン

また各コンパートメントは12平方メートル程度のワンルームで、すべての成人に1戸が配分されることになっていた【図11】。帯状に連なる住宅はピロティによって2メートルほど地上から持ち上げられ、このピロティ部分が通路を兼ねた。居室の東西の壁面には巨大な開口部が設けられ、通風・採光を効率的に確保するだけでなく、周囲の自然を直に感じられる「屋根のあるテラス」[★14]であることが目指されていた。このようなオヒトヴィチ=ギンズブルグの住宅モデルで重視されたのが、住み替えの容易さである。オヒトヴィチは年齢や性別によって機械的に住宅を配分することに反対し、労働環境や人間関係の変化(職場の異動や婚姻、出産など)に応じて、ある住居から別の住居へと容易に住み替え可能であるべきだと考えた[★15]。このようなオヒトヴィチの主張を受けて、ギンズブルグらは住宅のデザインを標準化し、すべての家具を作りつけにすることで、労働者がトランクひとつで部屋から部屋へと自由に移り住めるような居住システムを構想したのである。それはまさしくエンゲルスによって提示された理想の労働者住宅、「家」からの最終的な解放のための家──あるいは反・家──であったというべきだろう。

おわりに――ドム・コムーナの終焉
ギンズブルグらの後ろ盾となったロシア共和国の財務人民委員(財務大臣)ニコライ・ミリューチンは、「新しいブィトとは、新しい労働と居住環境の自然な帰結、人びとの生活に必要なサーヴィスを公共化するさまざまな施設の適切な組織化の結果として生まれるものでなければならない」[★16]という発言を残している。彼の言葉が示すように、一部のボリシェヴィキやアヴァンギャルド建築家たちは、共用の食堂から個室の廃棄にいたるまで、住空間そのものを作り替えることで、社会主義的な心身をもった「新しい人間」を作り出せると信じていた。そして最終的に、それは都市という規模における住空間の再編成へと向かったのである。
しかしこのような「新しいブィト」の実験は、スターリンによる独裁体制が強化されていくなかで、間もなく党指導部との間に政治的な軋轢を引き起こすことになる。1930年5月16日、共産党中央委員会で採択された「ブィトの再建に関わる作業について О работе по перестройке быта」では、性急な生活の共同化・集団化が「有害でユートピア的な提案」として厳しく批判された。さらに翌年には、スターリンの右腕であったラーザリ・カガノヴィチによって、ドム・コムーナの実験や社会主義都市構想が、やはり非現実的なユートピア主義として否定された[★17]。
これによって、社会主義住宅に関する議論は急速に退潮していった。1932年から本格化するモスクワ再開発計画にも集合住宅の建設は含まれていたが、それらは基本的に家族単位のフラットであり、もはや生活の共同化や集団化が目標として掲げられることはなかった。ドム・コムーナの理想の原点にあった女性の家庭からの解放もまた、1930年代前半には次々に否定されていった。第1次5カ年計画中の強引な農業集団化は大規模な飢饉を引き起こし、出生率は急速に低下した。これに危機感を抱いた政府は、女性の出産・育児を奨励する一方で中絶を非合法化し、離婚にかかる費用も引き上げた。重工業の集中的育成という指針の下、男性にはノルマ以上の生産が要求されたが、女性には労働に加えて家事や育児の無償労働が課された。もっとも、このような社会主義的ブィトや社会主義住宅をめぐる議論の明らかな後退に対して、全く批判が起こらなかったわけではない。実際、女性部の発行していた雑誌『女性労働者』では、家族単位の住まいのリバイバルに対して批判的な記事が掲載された。しかしそのような記事は間もなく誌面から追放され、さらには女性部そのものも、ソ連における女性の問題はすべて解決されたというスターリン発言を受けて、1934年に廃止に追い込まれた[★18]。
このように、社会主義の誕生の当初から主要な争点であった労働者住宅の問題は、深刻化の一途をたどり続ける住宅難とは裏腹に、1930年代前半にはソ連の公的言説やメディアから姿を消し、不可視化されていった。だがその一方で、生活の共同化と集団化は、スターリン時代の都市労働者にとってまぎれもない現実そのものだった。絶望的なまでの住宅不足のために、彼らの多くは社会主義住宅の理想とは程遠い空間で、強制的な共同生活を余儀なくされていたのである。次回は、今回紹介したドム・コムーナや社会主義都市の実験のいわば裏面にあたる、共同住宅「コムナルカ коммунальная квартира」について論じていきたい。
次回は2021年3月配信の『ゲンロンβ59』に掲載予定です。
図版出典
【図1】Современная архитектура. 1929. №1.
【図2】Современная архитектура. 1929. №1.
【図3】Современная архитектура. 1929. №1.
【図4】Современная архитектура. 1929. №1.
【図5】Современная архитектура. 1929. №5.
【図6】Современная архитектура. 1929. №5.
【図7】Современная архитектура. 1929. №5.
【図8】Современная архитектура. 1929. №1.
【図9】Сабсович Л. М. Социалистические города. М., 1930.
【図10】Современная архитектура. 1930. №1-2.
【図11】Современная архитектура. 1930. №1-2.
★1 Стройком РСФСР // Современная архитектура. 1929. №1. С. 8-11.
★2 Там же. С. 19-23.
★3 Там же. С. 14-17.
★4 八束はじめ『ロシア・アヴァンギャルド建築[増補版]』LIXIL出版、2015年、235頁。
★5 《ドム・ナルコムフィン》は長らく廃墟のような状態で放置されていたが、ギンズブルグの孫で建築家のアレクセイ・ギンズブルグの総指揮の下に修復が行われ、2020年に完了した。修復後の姿や修復の過程については、下記サイトを参照。https://archi.ru/en/87380/architectural-archaeology-of-the-narkomfin-building-the-recap
★6 Гинзбург М. Я. Дом сотрудников Наркомфина // Современная архитектура. 1929. №5. С. 158-164.
★7 Рационализация кухни // Современная архитектура. 1929. №1. С. 24-25.
★8 Кузьмин Н. Научной организации быта // Современная архитектура. 1930. №3. С. 14-17.
★9 Сабсович Л. М. Города будущего и организация социалистического быта. М., 1929. С. 21, Сабсович Л. М. Новые пути в строительстве городов // Строительство Москвы, 1930. №1. С. 3-4.
★10 Сабсович Л. М. Социалистические города. М., 1930. С. 46.
★11 Охитович М. К проблеме города // Современная архитектура. 1929. №4. С. 132-134.
★12 Паперный В. Культура два. М., 2006. С. 65.
★13 Гинзбург М., Барщ М. Зеленый город // Современная архитектура. 1930. №1-2. С. 31.
★14 Там же. С. 32.
★15 Охитович М. Социализм города // Революция и культура. 1930. №3.С. 56.
★16 Милютин Н. А. Проблема строительства социалистических городов: Основные вопросы рациональной планировки и строительства населенных мест СССР. М., 1930. С. 37.
★17 ALynne Attwood, Gender and Housing in Soviet Russia: Private Life in a Public Space (Manchester and New York: Manchester University Press, 2010), pp. 108-110.
★18 Ibid., pp. 111-112.


本田晃子
1979年岡山県岡山市生まれ。1998年、早稲田大学教育学部へ入学。2002年、東京大学大学院総合文化研究科超域文化科学表象文化論分野へ進学。2011年、同博士課程において博士号取得。日本学術振興会特別研究員、北海道大学スラブ・ユーラシア研究センター非常勤研究員、日露青年交流センター若手研究者等フェローシップなどを経て、現在は岡山大学社会文化科学研究科准教授。著書に『天体建築論 レオニドフとソ連邦の紙上建築時代』、『都市を上映せよ ソ連映画が築いたスターリニズムの建築空間』(いずれも東京大学出版会)など。
革命と住宅
- 革命と住宅 特設ページ
- 革命と住宅(最終回) 第5章 ブレジネフカ──ソ連団地の成熟と、社会主義住宅最後の実験(後篇)|本田晃子
- 革命と住宅(9) 第5章 ブレジネフカ──ソ連団地の成熟と、社会主義住宅最後の実験(前篇)|本田晃子
- 革命と住宅(8) 第4章 フルシチョーフカ──ソ連型団地の登場(後篇)|本田晃子
- 革命と住宅(7) 第4章 フルシチョーフカ──ソ連型団地の登場(前篇)|本田晃子
- 革命と住宅(6) 第3章 スターリン住宅──新しい階級の出現とエリートのための家|本田晃子
- 革命と住宅(5)第2章 コムナルカ──社会主義住宅のリアル(後)|本田晃子
- 革命と住宅(4)第2章 コムナルカ──社会主義住宅のリアル(中)|本田晃子
- 革命と住宅(3) 第2章 コムナルカ──社会主義住宅のリアル(前)|本田晃子
- 革命と住宅(2) ドム・コムーナ──社会主義的住まいの実験(後篇)|本田晃子
- 革命と住宅(1) ドム・コムーナ──社会主義的住まいの実験(前篇)|本田晃子



